Ecole Xing Ancun
Scénographie Musée Sisteron
Chapelle Jiao Zhuang
Local Ferrie
Eglise Xing Ancun
Mairie de Fourques
Centre de Retraite Dong An
Ecole Maternelle de la Roseraie
PROJETS
PRESTATIONS
CONTACT
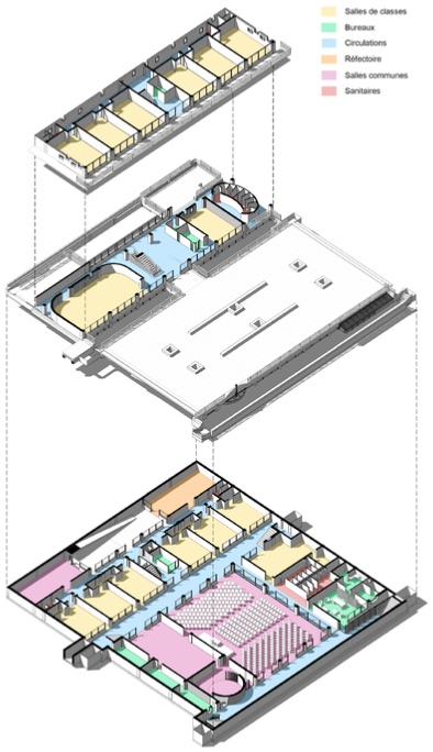
XING ANCUN - CHINE
MISSION |
Mission complète
MAÎTRE D’OUVRAGE |
RP ZHANG
Bâtiment construit en semi-souterrain pour cause de contraintes de disponibilité foncière | Tous les locaux sont éclairés naturellement par un jeu de grandes cours anglaises servant aussi de rue intérieures et reliant les distributions verticales |